Solide vermietetes Mehrfamilienhaus in zentraler Lage von Offenbach zu verkaufen
Objektart
Adresse
Objektdaten
Informationen
Ausstattung
Details
Besuchen Sie unsere Website und sichern Sie sich einen Vorsprung: Neue Immobilienangebote veröffentlichen wir zunächst exklusiv für unsere Kunden, noch vor der Veröffentlichung auf den Immobilienportalen.
Die hier angebotene Immobilie ist ein Mehrfamilienhaus mit einer Gesamtwohnfläche von ca. 610 m², verteilt auf 25 Zimmer. Das Gebäude wurde im Jahr 1963 errichtet und ist der Energieeffizienzklasse H zugeordnet. Die Beheizung erfolgt über eine Zentralheizung.
Im Jahr 2024 wurde das gesamte Gebäude umfassend und hochwertig renoviert. Alle Etagen befinden sich in einem modernen Zustand. Besonders hervorzuheben ist, dass die gesamte Fläche langfristig an ein etabliertes Unternehmen vermietet ist - ein klares Plus für Investoren, die auf stabile Mieteinnahmen und eine verlässliche Nutzung setzen.
Die Räumlichkeiten bieten großzügige und flexibel nutzbare Flächen, die sich ideal für betriebliche oder gemeinschaftliche Zwecke eignen. Die 25 Zimmer ermöglichen eine effiziente und durchdachte Aufteilung für verschiedenste Nutzungskonzepte.
Ein weiterer Vorteil: Das Gebäude verfügt über einen Keller, der zusätzlichen Stauraum bietet.
Mit ihrer zentralen Lage in Offenbach, dem vollständig renovierten Zustand und der sicheren Langzeitvermietung an eine Firma ist diese Immobilie eine äußerst attraktive Investitionsgelegenheit mit solidem Ertragspotenzial.
Kennung: 0525-638
Baujahr: 1963
Grundstücksgröße: 382 m²
o Fassade mit 16cm WDVS gedämmt
o 2fach verglaste Schüco-Fenster von 2017
o Gute und zentrale Wohnlage von Offenbach
o Gute ÖPNV-Anbindung (S-Bahn S1, S2, S8, S9 Station "Ledermuseum")
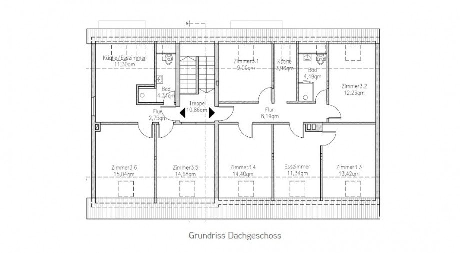
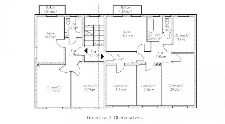
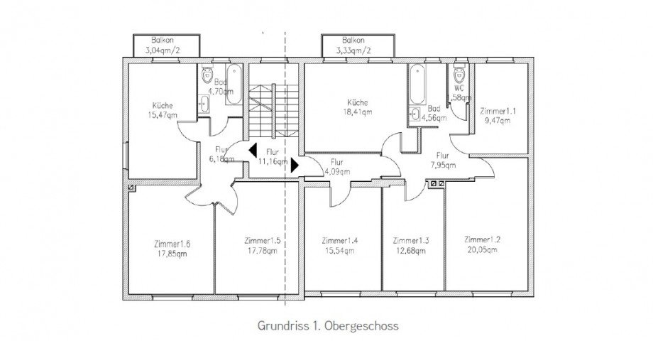
Nr.Nutzung Lage Fläche ca.
1 Wohnung EG re 63,17 m²
2 Wohnung EG li 96,30 m²
3 Wohnung 1.OG re 63,17 m²
4 Wohnung 1.OG li 96,30 m²
5 Wohnung 2.OG re 63,17 m²
6 Wohnung 2.OG li 96,30 m²
7 Wohnung DG re 51,64 m²
8 Wohnung DG li 79,92 m²
**
Ein Energieausweis liegt zur Besichtigung vor!
Die Wohnungen befinden sich in einem ruhigen Wohnviertel im Stadtteil Offenbach am Main. Dieser Stadtteil ist für seine grünen Parks und die familiäre Atmosphäre bekannt. In unmittelbarer Nähe befinden sich Supermärkte, Schulen, Kindergärten und eine Vielzahl von Restaurants und Cafés. Die gute Anbindung an den öffentlichen Nahverkehr und die Autobahn macht es einfach, sich in der Stadt und Umgebung zu bewegen.
Offenbach am Main ist eine lebendige Stadt im Rhein-Main-Gebiet. Mit einer vielfältigen Kulturszene, zahlreichen Einkaufsmöglichkeiten und einer lebendigen Gastronomie bietet die Stadt für jeden etwas. Die historische Altstadt lädt zum Bummeln und Entdecken ein, während moderne Architektur und Veranstaltungen das Stadtbild prägen.
Die Region um Offenbach am Main besticht durch ihre Nähe zur Metropole Frankfurt am Main und die landschaftlich reizvolle Umgebung des Taunus. Mit zahlreichen Erholungsmöglichkeiten wie Wander- und Fahrradrouten, Seen und Wäldern bietet die Region eine hohe Lebensqualität für Einwohnerinnen und Einwohner. Die gute Anbindung an den Flughafen Frankfurt und die umliegenden Städte macht die Region zu einem attraktiven Wohnort für Menschen jeden Alters.
GELDWÄSCHE:
ILTIGER Immobilien ist als Immobilienmakler nach § 2 I Nr. 14, § 10 III und § 11 I, II Geldwäschegesetz (GwG) verpflichtet, beim Zustandekommen einer Geschäftsbeziehung mit ernsthaftem Interesse an der Durchführung des Immobilienkaufvertrages, die Identität des Vertragspartners festzuhalten und zu überprüfen. § 11 IV GwG in Verbindung mit § 11 VI GwG sieht Ihrerseits mitwirkungspflichtig vor, dass das Maklerunternehmen relevante Daten Ihres Personalausweises bei natürlichen Personen mittels Fotokopie des Personalausweises festhält. Bei juristischen Personen muss eine Kopie des Handelsausweises als Nachweis zur Berechtigung vorgelegt werden. Die gespeicherten Daten
werden 5 Jahre aufbewahrt.
HAFTUNG:
Die dem Kunden übermittelten Angaben zu dem jeweils vorgestellten Objekt beruhen auf Informationen des Eigentümers/Verkäufers. Für deren Vollständigkeit und Richtigkeit übernimmt ILTIGER Immobilien keine Haftung. Eine bestimmte Beschaffenheit des Objekts ist nicht vereinbart, Garantien werden nicht abgegeben. Dies gilt auch für etwaige Äußerungen des Verkäufers oder Dritter im Hinblick auf
Eigenschaften der vorgestellten Objekte, etwa in einem Exposé oder einer Annonce. Die dort enthaltenen Angaben sind keine verbindlichen Auskünfte über Eigenschaften oder Beschaffenheiten, sondern ausschließlich Beschreibungen. Alle Immobilienangebote sind freibleibend und vorbehaltlich Irrtümer, Zwischenverkauf- und Vermietung oder sonstiger Zwischenwertung.
PROVISION:
Mit der Anfrage bei und durch Inanspruchnahme der Dienstleistung der Firma ILTIGER Immobilien wird ein Maklervertrag geschlossen. Sollte durch unsere Nachweis- oder Vermittlungstätigkeit ein notarieller Kaufvertrag zustande kommen, ist vom Käufer eine Provision in Höhe von 5,95 % (inkl. MwSt.) des Kaufpreises an ILTIGER Immobilien zu zahlen. Die Provision ist mit Vertragsabschluss verdient und fällig.
Wir freuen uns darauf, Ihnen dieses Objekt im Rahmen einer gemeinsamen Besichtigung vorzustellen und sehen Ihrer Kontaktaufnahme entgegen!
Energieausweis (Bedarfsausweis)
313 kWh / (m²*a) Endenergiebedarf
313 kWh / (m²*a) Endenergiebedarf
313 kWh / (m²*a) Endenergiebedarf
313 kWh / (m²*a) Endenergiebedarf
313 kWh / (m²*a) Endenergiebedarf Weitere Informationen
| Wesentlicher Energieträger | Gas |
| Energieausweis Ausstelldatum | 2019-07-09 |
| Energieausweis Jahrgang | ab dem 1.5.2014 |
| Energieausweis Werteklasse | H |
| Energieausweis Baujahr | 1963 |
| Energieausweis Gebäudeart | Wohngebäude |
| Heizung | Zentralheizung |
| Befeuerung | Gas |
